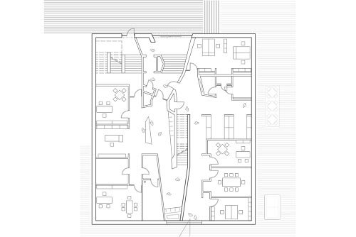
RATHAUS

Neubau Rathauserweiterung mit Kinder- und Jugendbetreuung

2015 | Gaildorf
BAUHERR Stadt Gaildorf
FREIANLAGEN Glück Landschaftsarchitektur
LP 1-3
BGF ca. 1.600 m²

KINDERGARTEN UND SCHULE IN WELLENDORF

2019 | Realisierungswettbewerb | Neubau Kindergarten mit Erweiterung und Sanierung der Grundschule | 3. Preis

weiter →

NEUBAU IHK BILDUNGSZENTRUM

begrenzt offener Realisierungswettbewerb
2. Preis

2014 | Aalen
AUSLOBER IHK Ostwürttemberg
MIT von Scholley Architekten
BGF ca. 5.500 m²

NEUBEBAUUNG KRONENPLATZ

2012 | Stadthaus und Volkshochschule mit Tiefgarage

weiter →

GRENZÜBERSCHREITENDE GARTENSCHAU

2006 | offener Ideen- und Realisierungswettbewerb | 1. Preis mit Beauftragung

weiter →

FACHMESSEN NEW COME

1999, 2001, 2002, 2004 | Fachmesse für Existenzgründung - Gestaltung Beratungsparcours

weiter →

PROJEKTE IM ÜBERBLICK

PROJEKTE IM ÜBERBLICK

Referenzen von 1998 – heute

TORWIESENSCHULE

2013 | Umnutzung eines ehemaligen Bürogebäudes in eine inklusive Schule

weiter →