NEUBAU LKW-SERVICE STATION MIT WERKSTÄTTEN, LAGER UND VERWALTUNG
2023 | Neubau LKW-Station mit Werkstätten, Lager und Verwaltung
weiter →
NEUBAU LKW-SERVICE STATION VOLVO GROUP AUSTRIA
Mit Werkstätten, Lager und Verwaltung
2023 | Kottingbrunn
BAUHERR
Volvo Group Austria GmbH
Generalplanung Lph. 1 bis 8 HOAI
BGF 4.180 m²
NGF 3.840 m²
BRI 25.750 m³
Grundstück 28.546 m²
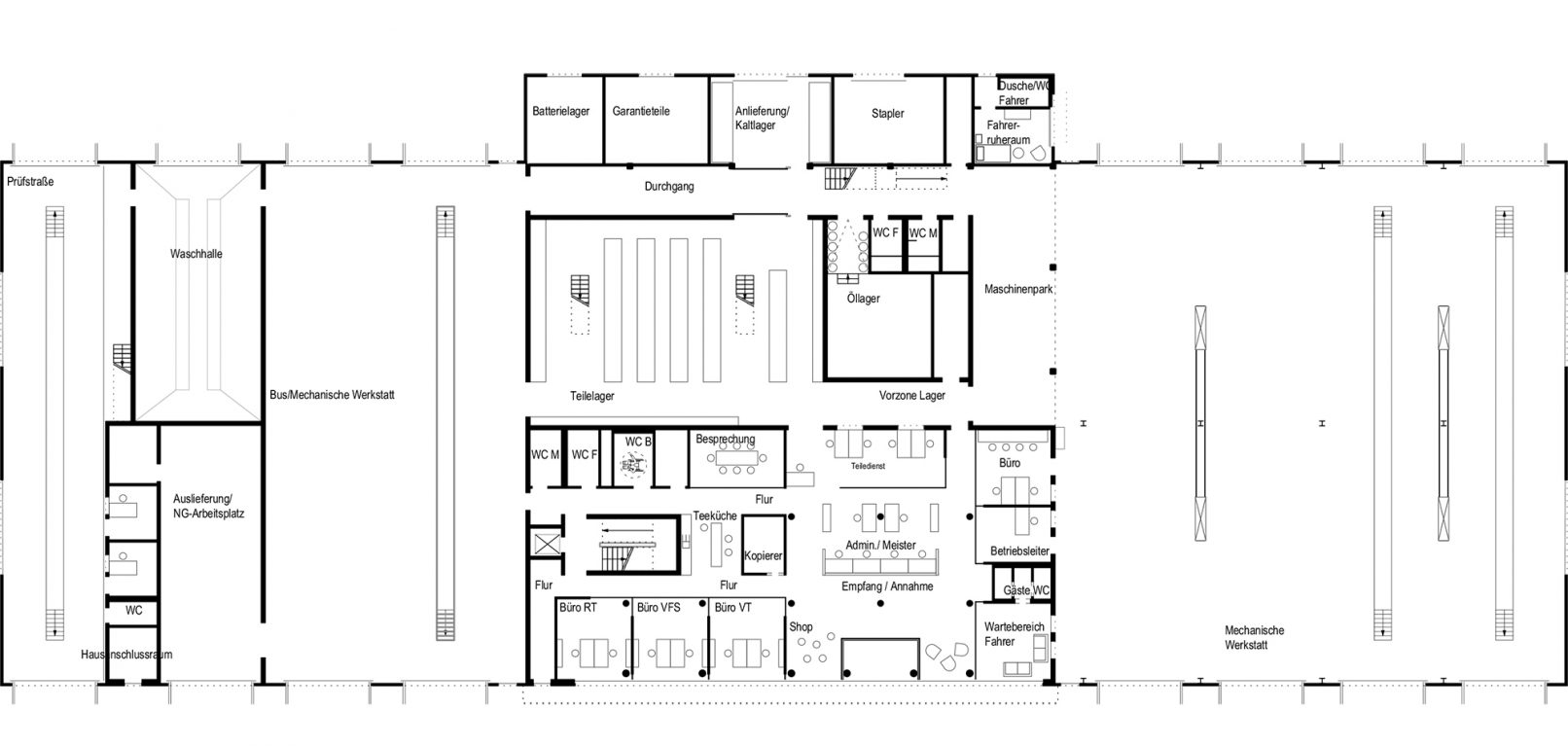
Nach 14 Monaten Bauzeit siedelte die Volvo Group Austria GmbH an ihren neuen Standort in Kottingbrunn bei Wien um. In dem Gebäude ist eine LKW-Werkstatt und die Hauptverwaltung der VGA untergebracht. Die 8-Bahnen-Anlage umschließt den mittig angeordneten, 3-geschossigen Service- und Verwaltungsbereich. Das Gebäude ist vorwiegend als Stahl- und Stahlbetonkonstruktion in Fertigteilbauweise mit einer Fassade aus Stahl- und Aluminiumelementen errichtet.
Die Temperierung des Gebäudes erfolgt über eine Luft-Wärmepumpen-Anlage, die über eine 180 kWp Photovoltaikanlage elektrisch versorgt wird. Diese versorgt u. a. auch die auf dem Grundstück verteilte Ladeinfrastruktur für PKW und LKW mit Einzelleistungen von bis zu 300 kW.
Das Niederschlagswasser aus den Dach- und Hofflächen wird vollständig auf dem Grundstück zurückgehalten und über ein Mulden-Rigolen-System und Speicherbecken versickert.
Bildnachweis: mha



