WOHNGRUPPENHAUS IN WEINSTADT
2013 | Neubau für 24 Menschen mit Behinderung
weiter →
WOHNGRUPPENHAUS IN WEINSTADT
Neubau für 24 Menschen mit Behinderung
2013 | Weinstadt
BAUHERR
Diakonie Stetten e.V.
STATIK
Gauger + Partner
HLS
Nürk + Partner
ELEKTRO
elektroplan GmbH
LP 1-9 Gebäude + Freianlagen, Generalplanung
BGF ca. 1.250 m²
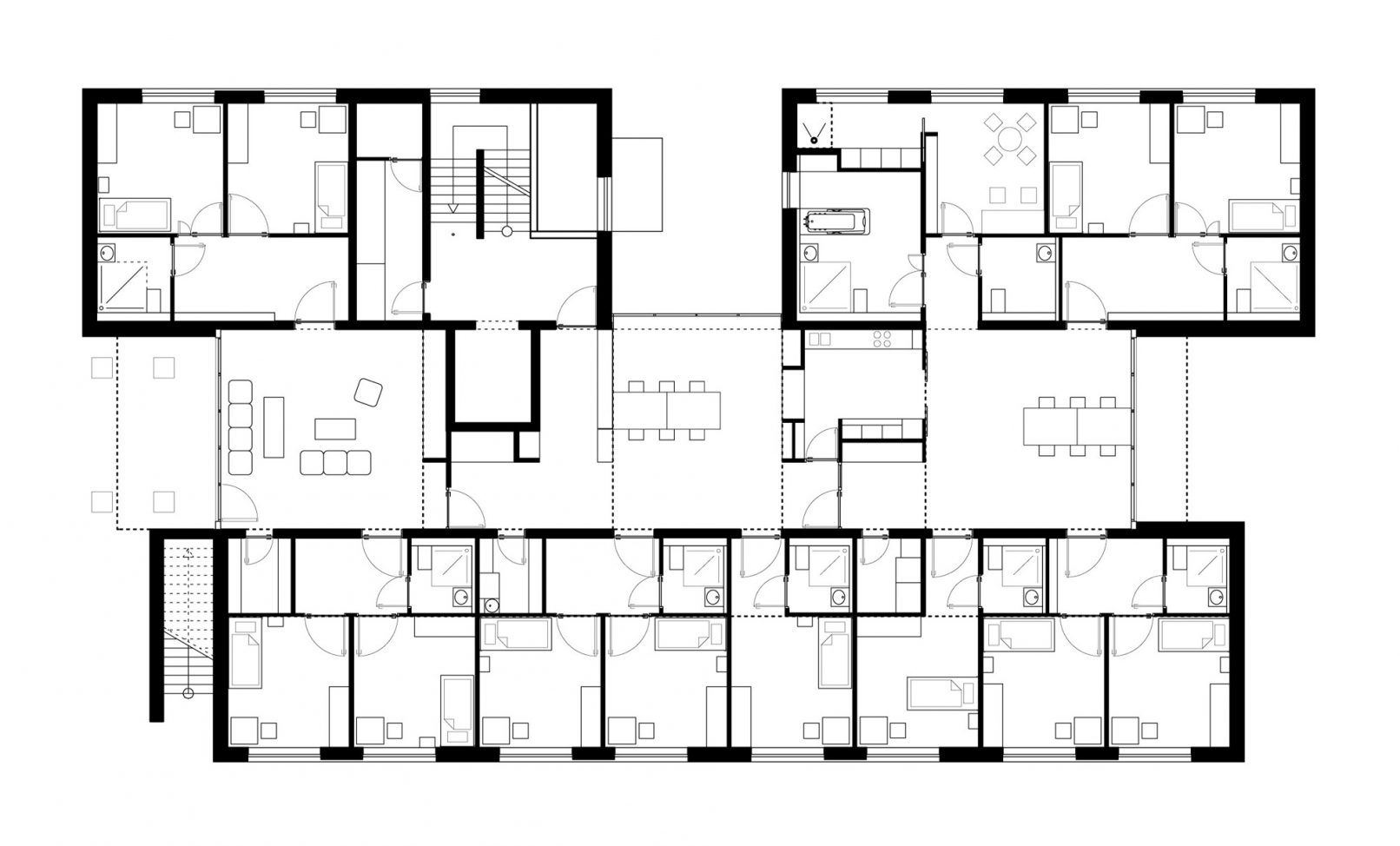
Das 2-geschossige, barrierefreie Gebäude, mit einem topographiebedingten Sockelgeschoss liegt in zweiter Reihe zwischen Gewerbe und Wohnen. Die Erschließung erfolgt über den im Norden angrenzenden Gewerbehof, welcher gleichzeitig als Lärmpuffer zur stark befahrenen Schorndorfer Straße fungiert.
Der Haupteingang befindet sich im Sockelgeschoss. Das Gebäude ist komplett barrierefrei konzipiert.
Pro Etage sind je 12 Bewohnerzimmer als eine Wohngruppe organisiert. Zwei Bewohner teilen sich in der Regel ein Bad, 4 Bäder sind zusätzlich für Rollstuhlfahrer ausgelegt. Durch den Verzicht auf Flure als reine Verkehrsflächen, werden die gemeinschaftlich genutzten Bereiche – trotz eng gesteckter Flächenvorgaben des Fördergebers – großzügig und flexibel nutzbar.
Neben dem Zugang zum Außenbereich, schließen sich an die Gemeinschaftsflächen auch Nebenräume sowie Pflegebad und Dienstzimmer an.
Das Projekt auf competitionline
Bildnachweis: Wolfgang Michaelsen



