WOHNGRUPPENHAUS IN SCHORNDORF
2013 | Neubau für 24 Menschen mit Behinderung sowie drei Eigentumswohnungen
weiter →
WOHNGRUPPENHAUS IN SCHORNDORF
Neubau für 24 Menschen mit Behinderung sowie drei Eigentumswohnungen
2013 | Schorndorf
BAUHERR
Diakonie Stetten e.V.
STATIK
Gauger + Partner
TGA
Ingenieurbüro Bosch
LP 1-9 Gebäude + Freianlagen, Generalplanung
BGF ca. 1.550 m²
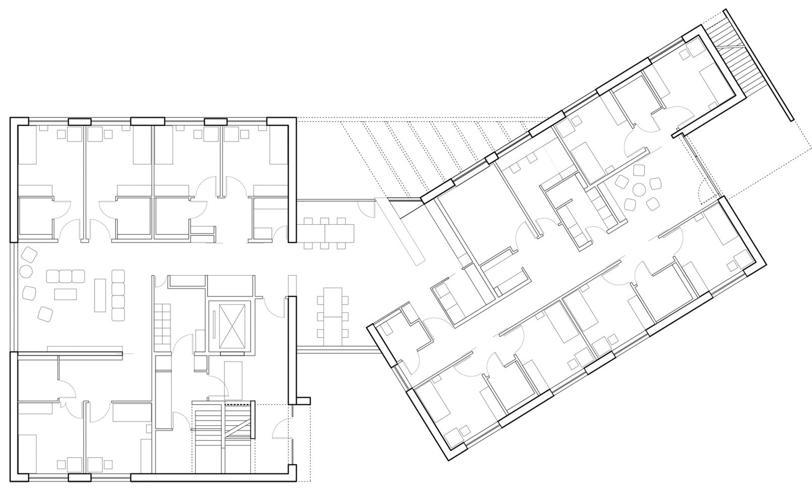
Für das Eckgrundstück waren im Bebauungsplan zwei Häuser vorgesehen. Aus dieser Vorgabe und der Prämisse der Wirtschaftlichkeit wurde ein einzelner Baukörper aus einem 2- und einem 3-geschossigen Gebäudevolumen sowie einem Verbindungsgelenk entwickelt.
Dieses Gelenk definiert den Eingangsbereich: Hier liegen das Treppenhaus mit Aufzug und die gemeinschaftlichen Nutzungen. Der höhere Kopfbau beinhaltet zusätzlich drei Eigentumswohnungen, welche den Inklusionsgedanken bis ins Haus holen. In ebenerdiger Lage zum Garten und den angrenzenden Obstwiesen befindet sich eine 12er Wohngruppe mit höherem Pflegebedarf. Die obere Etage ist in zwei 6er Gruppen aufgeteilt.
In der Regel teilen sich zwei Bewohner ein Bad, welches über einen gemeinsamen Vorflur erschlossen wird. Die Neben- und Technikräume sind zumeist innenliegend mit auf den Etagen angeordnet da aus wirtschaftlichen Gründen wird auf eine Unterkellerung verzichtet wurde. Die offen konzipierten Aufenthaltsbereiche mit Küchen erhalten jeweils einen direkten Ausgang in den Garten bzw. auf großzügige Balkone. Das Haus ist barrierefrei nach DIN.
Das Projekt auf competitionline
Bildnachweis: Wolfgang Michaelsen




